Splnený sen po dvadsiatich rokoch

Od roku 1995 novácka lodenica praskala vo švíkoch. KRK Nováky sa po dvadsiatich rokoch dočkalo.

16.08.2016 18:57:50

V roku 1995 začal Klub rýchlostnej kanoistiky Nováky robiť nábory pretekárov, ktorých počet v nasledujúcich rokoch presahoval viac ako 60 aktívnych pretekárov. Vtedajšia lodenica s plánovanou kapacitou pre cca 15 až 20 osôb už zďaleka nepostačovala. Z dôvodu nízkej kapacity boli tréningy upravované a rozčlenené do troch a viac skupín po cca 20 pretekárov. Zatiaľ čo niektorí jazdili na vode, ďalší boli v posilňovni a zvyšok bol bežať.

Od roku 2006 sa pripravovala projektová dokumentácia novej lodenice. Návrhov a vizuálov na novú lodenicu bolo niekoľko.

Ako prvý sa do návrhov novej lodenice pustil Ing. Andrej Páleš.

Ing. Andrej Páleš svojim druhým návrhom položil latku vysoko a preskočil niekoľko dekád v architektúre pre našu oblasť. Jeho návrh bol úžasný, moderný a pozoruhodný.

S ďalšími návrhmi prišiel Ing. Juraj Kiaba (Noving).

V tomto období sa Klub rýchlostnej kanoistiky staral o mestskú budovu ako o svoju vlastnú. Pretekári sa sami rozhodli zrekonštruovať posilňovňu, ktorá už bola v nie najlepšom stave (03.11.2007).

Podrobnosti o rekonštrukcii posilňovne našimi pretekármi v druhom článku.

Následne, v auguste 2010, Klub rýchlostnej kanoistiky dal za peniaze sponzorov a z vlastných ušetrených zdrojov vybudovať plynovú prípoju a postupne zmenil staré, veľmi finančne náročné na prevádzku, elektrické vykurovanie na plynové v priestoroch chaty.

Po plynofikácií priestorov chaty sa od roku 2011 KRK Nováky rozhodlo zrekonštruovať postupne aj bazén, šatne, vymeniť okná za plastové, nové sieťky a stierky, nové skrinky. A to všetko z dôvodu zúfalého stavu mestskej budovy a prísľubov, ktoré boli v nedohľadne a až priam nereálne pre vtedajšie vedenie mesta.

Všetky tieto práce na mestskom majetku vykonával Klub rýchlostnej kanoistiky vďaka finančným prostriedkom, ktoré získalo od sponzorov a hlavne od vtedajšieho generálneho sponzora DAK KIABA, pána Antona Kiabu. Okrem finančných prostriedkov prichádzala aj pomoc od členov, pretekárov a rodín, ktorí dobrovoľne pracovali a pomáhali vtedy a pomáhajú dodnes.

Konečne...

Po ďalších necelých deviatich rokoch od prvých vizuálov sa podarilo dať dokopy všetky podklady, povolenia a hlavne finančné prostriedky. Dňa 03.11.2015 o 09:11 boli zahájené výkopové práce a začal sa plniť sen pretekárov a členov KRK Nováky, po ktorom túžili dvadsať rokov.

Práce napredovali veľmi rýchlo a každý týždeň sa lodenica menila na nepoznanie. Štedrý deň roku 2015 o 13:00 už stáli múry aj na poschodí novej prístavby, práce pokračovali vždy keď to počasie umožnilo.

18.03.2016 o 13:00, keď sa pokladala strešná krytina, lodenica naberala už seriózny dojem.

29.03.2016 pribudli plastové okná a v ďalší deň sa začalo zatepľovať.

Následne ku koncu apríla 2016, prišiel náter budovy a pomaly mizlo aj lešenie.

01.06.2016 sa začali terénne úpravy v okolí lodenice a práce na chodníku.

06.06.2016 sa ukončovali práce, tak ako v interiéry, tak aj v exteriéri.

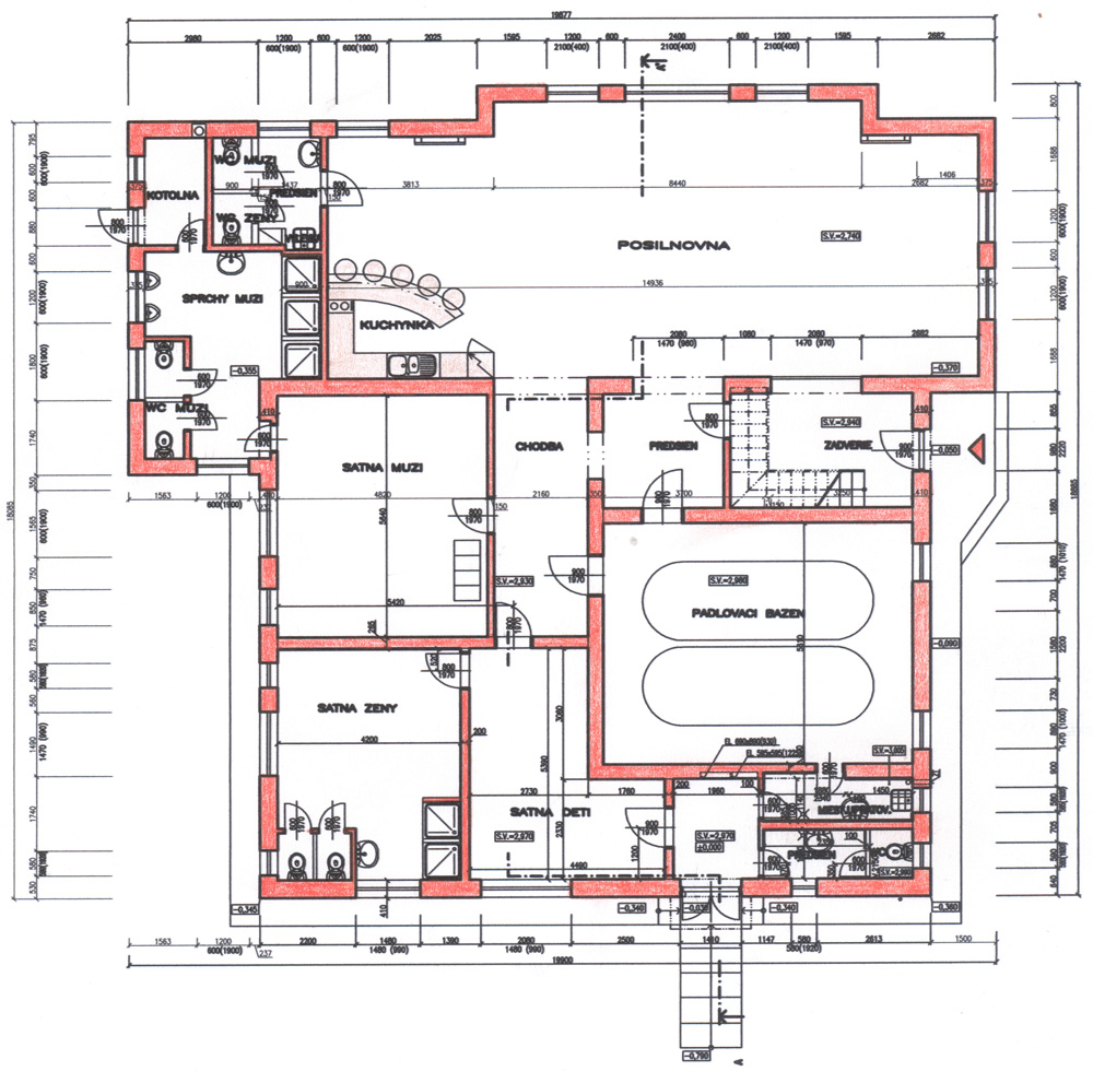
15.06.2016 nastala kolaudácia budovy. Chystali sa posledné práce pred slávnostným otvorením, ktoré bolo naplánované na 22.06.2016. Pribudol nápis na dvere, pribudla podlaha do posilňovne, pribudli posilňovacie zariadenia, zakúpené za 50% podpory Trenčianskeho samosprávneho kraja.

Vybavenie posilňovne podporil Trenčiansky samosprávny kraj

Vybavenie posilňovne podporil Trenčiansky samosprávny kraj

O 20 rokov neskôr, veľký deň...

Dňa 22. júna 2016 o 16:00 hod sa uskutočnilo slávnostne odovzdanie stavby „Lodenica prístavba a stavebné úpravy“ do užívania Klubu rýchlostnej kanoistiky Nováky.

Slávnosť príhovorom otvoril primátor mesta Nováky, RNDr. Daniel Daniš. Vo svojom príhovore vyzdvihol potrebu vytvárania podmienok pre športovanie detí a mládeže v meste. Po príhovore primátora mesta sa prihovoril prezident klubu KRK Nováky pán Milan Oršula, ktorý sa poďakoval nielen poslancom MsZ v Novákoch, ale všetkým občanom mesta Novák, že mohla byť zrealizovaná táto investičná akcia z rozpočtu mesta. Posledným, kto sa ujal slova, bol prezident Slovenského zväzu rýchlostnej kanoistiky, PaedDr. Róbert Petriska. Ten sa vo svojom príhovore vrátil o pár desaťročí do histórie a zaspomínal na podmienky, ktoré boli v Novákoch, keď on začínal s rýchlostnou kanoistikou v Novákoch. V ďalšej časti príhovoru pripomenul úspechy odchovancov KRK Nováky na svetových fórach.

Po príhovoroch nasledoval slávnostný akt strihania pásky. Následne si pozvaní hostia prezreli novo zrekonštruované priestory objektu.

Po obhliadke objektu sa hostia presunuli na terasu, kde bolo pripravené občerstvenie, ktoré padlo určite vhod v horúcom, ale pre Klub rýchlostnej kanoistiky Nováky veľmi významnom dni.

Vedenie Klubu rýchlostnej kanoistiky Nováky si dovoľuje ešte raz poďakovať partnerom, sponzorom, mestu Nováky, primátorovi mesta Nováky, poslancom mesta Nováky, občanom mesta Nováky, členom KRK Nováky, rodičom a priateľom Klubu rýchlostnej kanoistiky Nováky. Nové priestory sú pre nás veľkým darom a zároveň aj záväzkom do budúcnosti, aby sme dosahovali tak vynikajúce výsledky ako doteraz a aby sme vychovali ešte veľa olympionikov.


Späť na zoznam aktualít